

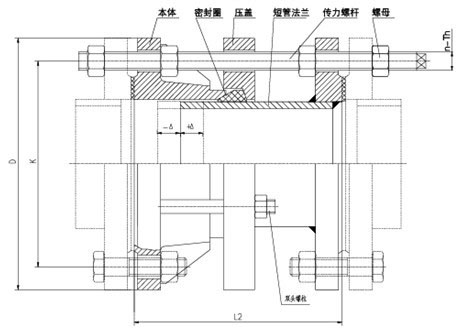
傳力接頭是泵、閥門,管道等設備與管道連接的新產品,通過全螺栓把它們連接起來,使其成為整體,并有一定的位移量,方便安裝。可承受管線的軸向壓力。這樣就可以在安裝維修時,根據現場安裝尺寸進行調整,在工作時,不僅提高工作效率,而且對泵、閥們等管道設備起到一定保護作用。
VSSJAF型雙法蘭松套傳力接頭適用范圍:
VSSJAF型雙法蘭松套傳力接頭適用于輸送海水、淡水、冷熱水、飲用水、生活污水、原油、燃油、潤滑油、成品油、空氣、煤氣、溫度不高于250度的蒸汽和顆粒粉狀等介質。
VSSJAF型雙法蘭松套傳力接頭優點:
1.安裝簡單方便、方便閥門安裝、可承受管線的軸向拉力。
2.該產品采用金屬鑄造或組成,松套部位選用梯形橡膠密封圈,在壓蓋和螺栓的作用下。
3.利用橡膠壓縮彈性變形原理。迫使密封圈變形于接頭本體伸縮管外壁之間進行靜密封。
4.金屬和密封圈嚴格按使用性能及用戶要求選用。材質外部涂裝度防腐漆料,各部連接螺栓為 度碳鋼或不銹鋼制作。因為本體與伸縮管之間有一定間隙,使它具有一定的軸向和徑向位移。
5.在管道中能的補償和管道和盲板推力,又能便于水泵,閥門的安裝維修更換,實為管道安裝運行業中為理想的配套產品。
VSSJAF型雙法蘭松套傳力接頭安裝簡要說明:
VSSJAF型雙法蘭松套傳力接頭適用于兩邊均與法蘭連接的管道中,安裝時調整產品兩端與法蘭的安裝長度,對角依次均勻擰緊壓螺栓,使其成為一個整體,并有一定的位移量,方便安裝維修時,根據現場尺寸進行調整在工作時,可以把軸向推力傳遞至整個管道。
技術參數:
|
公稱通徑
|
管子外徑
|
外形尺寸
|
伸縮量
|
法蘭連接尺寸
|
||||||
|
Dw
|
L
|
L1
|
0.6MPa
|
1.0MPa
|
||||||
|
D
|
D1
|
n-d。
|
D
|
D1
|
n-d。
|
|||||
|
65
|
76
|
340
|
105
|
50
|
160
|
130
|
4-¢14
|
185
|
145
|
4-¢18
|
|
80
|
89
|
190
|
150
|
4-¢18
|
200
|
160
|
8-¢18
|
|||
|
100
|
108
|
210
|
170
|
220
|
180
|
|||||
|
114
|
||||||||||
|
125
|
133
|
240
|
200
|
8-¢18
|
250
|
210
|
||||
|
140
|
||||||||||
|
150
|
159
|
265
|
225
|
285
|
240
|
8-¢22
|
||||
|
168
|
||||||||||
|
200
|
219
|
320
|
280
|
340
|
295
|
|||||
|
250
|
273
|
370
|
335
|
12-¢18
|
395
|
350
|
12-¢22
|
|||
|
300
|
325
|
350
|
130
|
65
|
440
|
395
|
12-¢22
|
445
|
400
|
|
|
350
|
377
|
490
|
445
|
505
|
460
|
16-¢22
|
||||
|
400
|
426
|
540
|
495
|
16-¢22
|
565
|
515
|
16-¢26
|
|||
|
450
|
480
|
595
|
550
|
615
|
565
|
20-¢26
|
||||
|
500
|
530
|
645
|
600
|
20-¢22
|
670
|
620
|
||||
|
600
|
630
|
755
|
705
|
20-¢26
|
780
|
725
|
20-¢30
|
|||
|
700
|
720
|
860
|
810
|
24-¢26
|
895
|
840
|
24-¢30
|
|||
|
800
|
820
|
590
|
220
|
130
|
975
|
920
|
24-¢30
|
1015
|
950
|
24-¢33
|
|
900
|
920
|
1075
|
1020
|
1115
|
1015
|
28-¢33
|
||||
|
1000
|
1020
|
1175
|
1120
|
28-¢30
|
1230
|
1160
|
28-¢36
|
|||
|
1200
|
1220
|
1405
|
1340
|
32-¢33
|
1455
|
1380
|
32-¢40
|
|||
|
1400
|
1420
|
1630
|
1560
|
36-¢36
|
1675
|
1590
|
36-¢42
|
|||
|
1500
|
1520
|
1730
|
1660
|
-
|
-
|
-
|
||||
|
1600
|
1620
|
1830
|
1760
|
40-¢36
|
1915
|
1820
|
40-¢48
|
|||
|
1800
|
1820
|
2045
|
1970
|
44-¢40
|
2115
|
2020
|
44-¢48
|
|||
|
2000
|
2020
|
2265
|
2180
|
48-¢42
|
2325
|
2230
|
48-¢48
|
|||
|
2200
|
2220
|
2475
|
2390
|
52-¢42
|
2550
|
2440
|
52-¢56
|
|||
|
2400
|
2420
|
2685
|
2600
|
56-¢42
|
2760
|
2650
|
56-¢56
|
|||
